That is the question I had to ask after I and other residents of Highfields Caldecote received a glossy A5 leaflet from Countryside Properties last week, inviting us to view their exhibition on their proposals for the “new village” at Bourn Airfield. They called it public consultation – I guess it ticks another box on the route to submitting their planning application.
Then on Monday, I saw the article in the Cambridge News, and I very nearly blew another gasket. “Plans revealed for massive new village on outskirts of Cambridge” screamed the headlines. One cannot but wonder at the irony of “massive” juxtaposed with “village”. Who is kidding whom?
So, with emotions still running high, I penned the following email to all the District Councillors and the CEO of South Cambridgeshire District Council.
Email to SCDC Councillors and CEO
Countryside proposals for Bourn Airfield – Planning application closer than this council will admit?
Dear Beverley and Members,
I am drawing your attention to the promotion that Countryside Properties are currently engaging in, promoting their plans for Bourn Airfield. This article in Cambridge News is self explanatory https://www.cambridge-news.co.uk/news/local-news/bourn-airfield-countryside-development-exhibition-14366894
Exhibitions are set to take place on 9th March at Cambridge Belfy in Cambourne (12pm to 6pm) and 10th March 2018 at Bourn Airfield (10am to 2pm) where sweet treats are on offer. I was not sure whether to laugh or cry at the offer of sweet treats!
You know I have been very vocal against this proposal right from the start, and will continue to be.
This Council, led by the Conservatives, made the wrong decision to build on Bourn Airfield. You are determined to build on this airfield come what may. You are determined to compound your original mistake with more mistakes. Whilst you don’t have literal blood on your hands, if this development goes ahead, you will have a lot to answer for – metaphorical blood is on your hands.
In effect, what you are doing is building Cambourne East by stealth. There is no amount of mitigation that will now keep Highfields separate from this proposed new village at Bourn Airfield.
Highfields is also now set to grow by 40% in the next 5 years because of the 5-year housing land supply sites granted permission at appeal. Thanks for nothing!! As we have experienced before, the infrastructure promised by all and sundry third party organisations to mitigate the problems caused by developments, fail to materialise or live up to expectation, and we don’t expect the situation to be any different this time round.
I have asked at least twice in member briefings this year already if the Council is expecting a planning application from Countryside for Bourn Airfield and been told “No we are not expecting any planning application from them” and that “we are encouraging them to wait for the Inspector’s decision”.
This does not look like an organisation that is waiting to implement its plan.
QUESTION: Can this Authority give the assurance that if Countryside did submit an application before the final say by the Inspector, that it would apply the prematurity defence?
We know that the Council has employed consultants to work on the SPD for this site and for Waterbeach, apparently in readiness if the Inspector approves the plan as is. I did express my scepticism at this explanation, and still do.
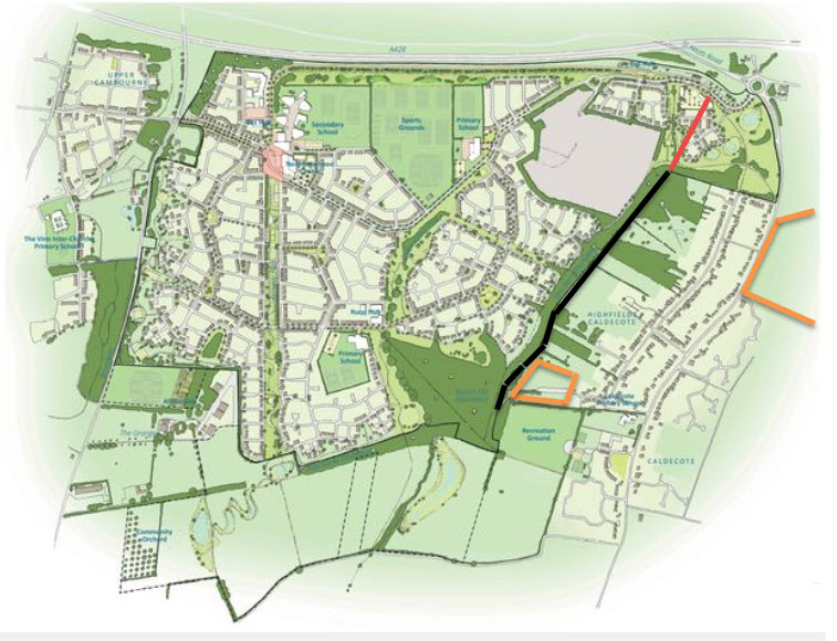
You may also want to look closely at the map of the proposed layout – with my annotations – attached to this email.

Considering that the additional land that Countryside requested has not been approved by the Inspector, they sure are using them already in their plans. Building right up to the eastern edge of the “new boundary” (parcel 4 – approved at Full council Dec 2016) which leaves maybe 50-60m between it and the parish boundary of Highfields Caldecote (black line). This is what Cllr Turner said would be a “substantial tree belt”.
And please let’s stop spinning the statement that a separation of at least 200m (or whatever the imaginary number was chosen) has been promised to Highfields. This is a slight of hand, that separation is not to our parish boundary but to our development framework – taking in land belonging to individuals in Highfields!! And all that talk about “substantial tree belt separation” is again nothing but spin!!
The area outlined in orange at bottom of Caldecote is the new extension of Grafton Drive for 58 houses, granted by the Appeal Inspector in December 2017. It comes right to the boundary of Bourn Airfield. So like it or not, we will be joined up there.
The area outlined in orange at the top of Highfields is the site for 140 houses (extends beyond the map to the right), which Countryside have now acquired from Gladmans for development. So either way, Countryside is set to be making a disproportionately huge impact on a Group village of 690 houses – for the forseeable future.
In addition, at the top right edge – Countryside have shown development on parcel 3, east of the red line (asked for but not allocated by Council). So who is kidding whom?
You may also note that there is a big grey parcel of land with nothing on it at the moment. That is the former site of TKA Tallent. SCDC recently (Feb 2018) consulted on adding this parcel to the development area as Countryside have asked for it, and Council voted for in December 2016. That parcel of land is not within the ownership of the Taylor family anymore – it is now owned by Savills, who have acquired it for their own purpose. So it is not available to Countryside (for now anyway) to build houses on. I do recall raising this as an issue during the debate at full council in December 2016, that there was no indication given that TKA had agreed to this site being subsumed, but no one in authority could comment on it. Who knows, maybe Savills and Countryside will do a deal ………
Countryside admitted in July 2017 at the Public hearing that it cannot fit 3500 houses on the original land allocation, and needed these additional parcels of land to be able to build the 3500 allocation
Does anyone really believe that 3,500 houses can be built at a reasonable density of 35 dwellings per hectare on the area that is left and shown in white? Really? Hands up anyone??
It will only fit that in if it builds at densities found in the centre of metropolitan high rise cities!! Is that what you want for this area?? so much for rural and green!
I also attach a pdf document showing just what the A428 corridor will look like after you have finished with it!!
So, to all those who voted for Bourn Airfield to be added to the plan, and then for the additional parcels of land in December 2016, thank you for nothing. I hope you can live with your consciences going forward, as you go to live in your own nicely green villages that are not threatened by massively overdeveloped sites on your doorsteps.
With the current Conservative Government determined to build out the Oxford to Cambridge corridor with as many houses as it can get away with, and change planning laws to make it easier to build, and punish councils that don’t build enough houses and/or underestimate their housing need, I guess our fate may be sealed.
But I for one will not be keeping quiet and will continue to speak out and voice my residents concerns, until the final decision from the Inspector is received.
Having said all that and on a lighter note, I wish you all very well indeed. 🙂
Have a fab week.
Best regards
Tumi
